
Residential Extension & Renovation
For Colin & Eileen
An old cottage is given a new lease of life - and provides a new home for a young family
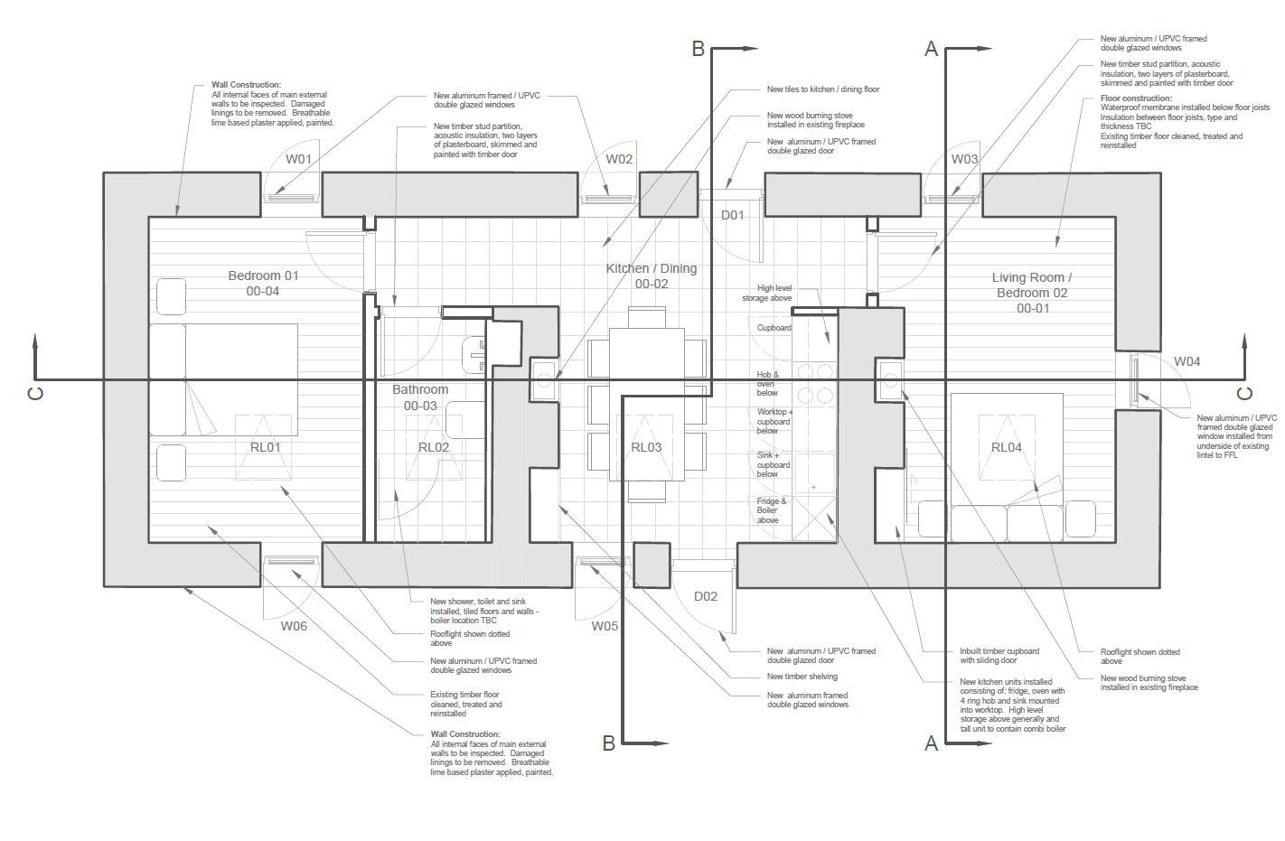
Sitting on a stunning site overlooking Strangford Lough in County Down, Northern Ireland, the clients wanted to transform the existing derelict cottage and outbuildings into a new family home, taking full advantage of the beautiful views and land.
The proposal retains the existing cottage renovating it to provide bedrooms or an independent dwelling for the couples ageing parents. The main family home is constructed over 2 floors & connected to the cottage. An open plan kitchen and double height dining space focus attention on the magnificent lough views while a living room sits snugly hidden at the back of the ground floor. Upstairs each bedroom enjoys views of the countryside while externally a corrugated steel cladding provides a modern twist on the traditional crinkly tin agricultural sheds of the surrounding landscape.


